エルスタンザ山王
賃料
-
種別
マンション
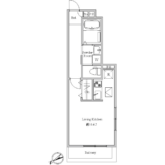
間取
1R
面積
25.46㎡
住所
東京都大田区山王1丁目
交通
大森駅
徒歩10分
担当者のコメント
◎アイディアルホーム◎
セキュリティ面は、防犯カメラ・防犯シャッターなど充実しているので、防犯対策もばっちりです。室内設備はネット使用料不要・システムキッチン・エアコンなど大変充実しております。令和7年11月の入居日指定になっておりますのでお気軽にお問い合わせください。ネットの回線工事が済んでいるのですぐにパソコンが使えます。マンションタイプのお部屋です。ワンルームは、一人暮らしの方からのニーズがあります。アイディアルホーム 大森本店で住まい検索をするなら、大田区エリアが一押しです。03-5767-7488からのお問い合わせをお待ちしております。
外観
間取り
居間・リビング
寝室
キッチン
浴室
独立洗面台
トイレ
設備
セキュリティ
収納
玄関
バルコニー
エントランス